現在、より最適なレイアウトがある場合は、部屋を再配置する方法を検討中です。

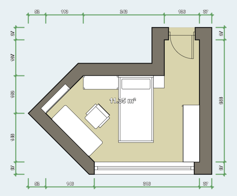
今、本棚(テーブルの後ろとベッドの横)とワードローブがあります。壁の長方形がエアコンの場所で、ベッドの向こう側に長い窓があります。ベッドが部屋の中心なので、仕事をせずにベッドでサボってしまうので、少し奇妙であまり最適とは言えません。

ベッドを隅に押し込むか、机と本棚の位置をワードローブと交換することを考えています。皆さんはどう思いますか、この部屋の 5 つの側面の性質は、私にとって取り組むのが難しい課題です。