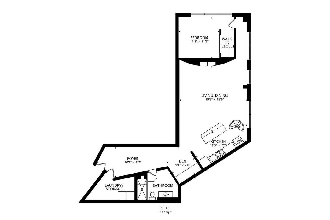
もうすぐこのコンドミニアムに引っ越してきて、キッチンのリフォームをしたいと考えています。スペースを有効活用したいのですが、ここに新しい大型家電を置くと他のものを置くスペースがなくなってしまうのではないかと心配です。

IHクックトップと二重壁オーブンを購入して、製パン業を支援し、感謝祭などのイベントを開催するのに適した場所にするつもりです。下のキャビネットを引き出しに交換し、アイランドカウンタートップをブースブロックに交換し、おそらく壁のカウンターの花崗岩をステンレス鋼に交換したいと考えています。

書斎の壁に穴を開けて、そのスペースを執事用のパントリーとして使用することを考えています(冷蔵庫をそこに移動し、その壁までキャビネットを拡張し、棚を設置します)。

何かアドバイスはありますか?