やあみんな、

私たちは現在、2 つのアパートを 1 つの大きなユニットに統合する真っ最中で、これにより 1 階の居住スペースを完全に再設計する機会が得られます。

もともと私たちは3部屋のメゾネット(階下にキッチン)のアパートに住んでいました。

私たちは最近、隣のアパートの 1 階 (平屋) を購入しました。現在、両方のユニットを 1 つのアパートメントに結合し、新しいアパートメントの以前のリビング ルームとキッチンを 1 つの大きなリビング ルームに改造しています。

したがって、これはめったにない機会ですが、少し圧倒されるような機会でもあります。妻も私もインテリア デザインに関しては初心者なので、どんなご意見でも大歓迎です 🙂

📐 フロアプランのコンテキスト

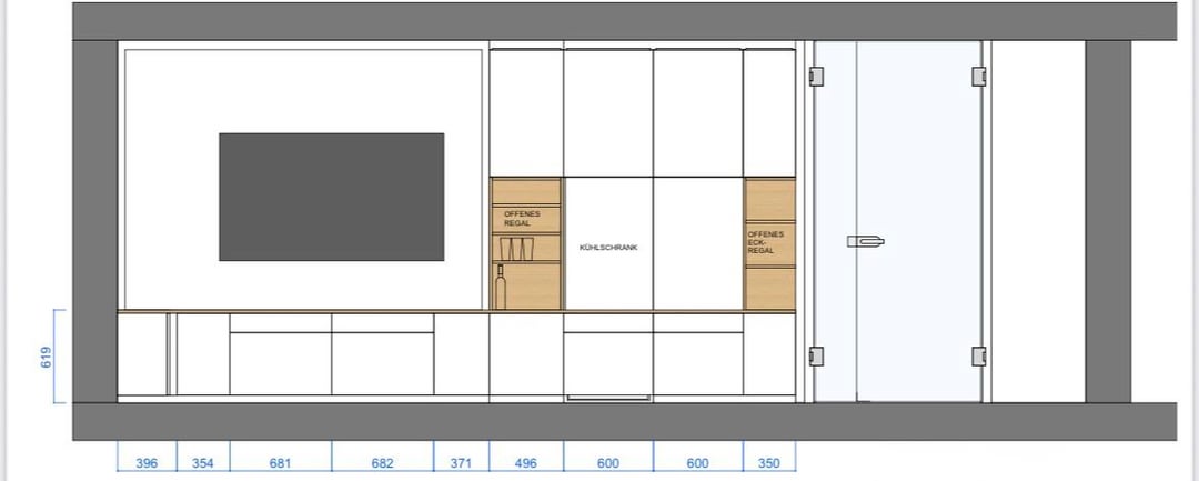
フロアプランでは次のようになります。

• 古いアパートと新しいアパートの間の移行ドアは赤色でマークされています

• 予定されているメディア ウォールも赤色でマークされます

• その壁の真ん中に煙突シャフトがあります(建物全体に属しており、移動できません)

メディアウォールが設置されている壁はドアから窓までの合計が4.53メートルあります。平面図に記されています。

天井高:2.43m

壁がしっかりしている(耐荷重ではない)

平面図にはバルコニー+窓が表示されています

📺 テレビのセットアップ

• TV: Philips 65OLED910/12 (アンビライト)

• 可動式壁掛けマウント

• 視聴距離: 3-3.4m

• AVR + 3.1 セットアップを計画中 (表示スピーカーと非表示スピーカーは未定)、5.1 以降

🧊 統合したいもの

キッチンは階下のメゾネット部分に残っているため、いくつかの機能要素をメディア ウォールに統合したいと考えています。

• 小型冷蔵庫(おもてなしの際の飲み物/軽食用)

• 炭酸水タップシステム (Quooker スタイルのシステムのような)

• ガラス製ストレージ

• 本

• AVRストレージ

給水接続は左側の壁にあるため、新たな配管は必要ありません。

電気的にはまだ調整可能です。

私たちは定期的に娯楽を行っており、小さな子供が1人います。

🎨 デザインディレクション

• モダン/ミニマル

•おそらくクルミ(ヌスバウム)

• オープンストレージとクローズドストレージの組み合わせ

• 完全に柔軟 – まだ何も注文されていません

💭 私たちの問題

インテリア建築家は、煙突とテレビを部屋全体の高さの造り付けフレームで囲む​​ことを提案しました。

私たちの懸念:

• 視覚的に重く感じる

• 部屋が狭くなる

• テレビが家具ブロックに「押し込まれている」ように見える

• アンビライト効果が失われる可能性があります

• 天井が 2.43 メートルあるため、フルハイトのキャビネットは多すぎると感じるかもしれません

現在のオファーは \~15,000 です。

私たちの目標予算は 10,000 ユーロに近いため、簡素化は歓迎されます。友達と一緒にDIYで何かを作ることはできますが、私たちはそれほど熟練していません 😅

❓ 不明なこと

  1. 煙突を隠すのではなく、特徴として受け入れるべきでしょうか?

  2. この天井高ではフルハイトのキャビネットを避けますか?

  3. 垂直線を壊す(例:連続したローボード + より軽い上部要素)は役立つでしょうか?

  4. テレビの壁は視覚的に静かなままにし、冷蔵庫や水を別の場所に移動する必要がありますか?

  5. 煙突の周りにすべてを集中させようとするよりも、非対称のほうが効果的でしょうか?

  6. スピーカーを隠すべきでしょうか、それとも見せるべきでしょうか?

大胆な提案を歓迎します。

平面図+完成予想図を添付します。

TL;DR:

2つのアパートを組み合わせて、リビングルームを再設計しています。メディア ウォールには、テレビ、冷蔵庫、炭酸水システムが組み込まれている必要がありますが、中央には固定煙突があります。現在のデザインは大きく感じられ、部屋が狭くなります。よりスマートなレイアウトのアイデアを探しています。

ご意見ありがとうございます 🙏