






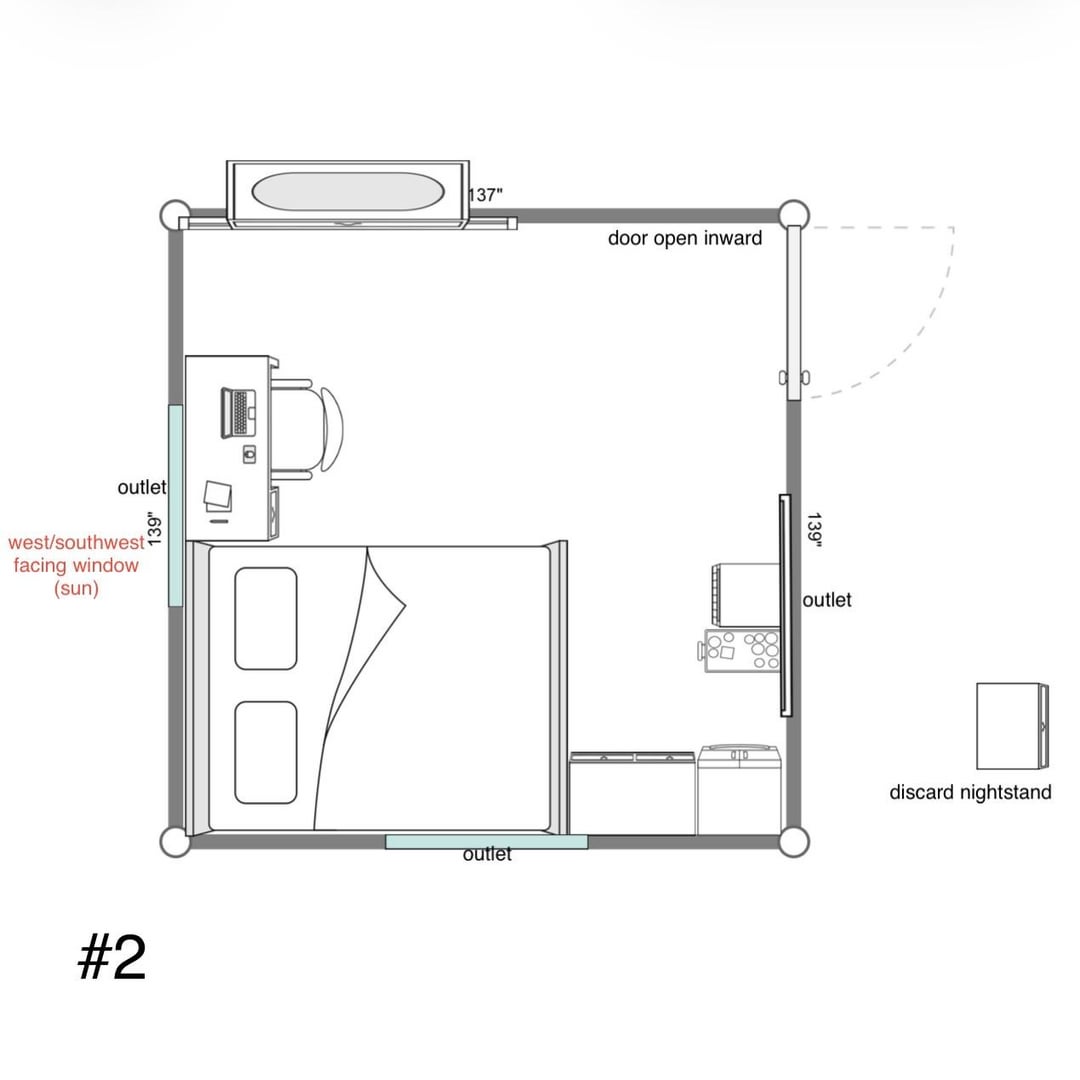
部屋の配置を変えようとしているのですが、以下に考えられる選択肢をいくつか挙げますので、どちらを選択するか決めるのに手助けが必要です。役立つように、各記号の画像も含めました。ぜひご提案ください。
現在オットマンはベッドの端に置いてあるのですが、スペースを作るためにクローゼットの中に移動させようと考えています。
欲しいもの:
– 化粧をするために太陽に面した窓の前に机を置きます(現在机は右側の壁のテレビの下にありますが、テレビの下に置いても問題ありません)
– ドアを開けて入った瞬間の「開放感」
– 時折ヨガマットやダンスをするのに十分なスペース