
みなさん、こんにちは。まず私の投稿をご覧いただき、ヒントやサポートを提供していただきありがとうございます。
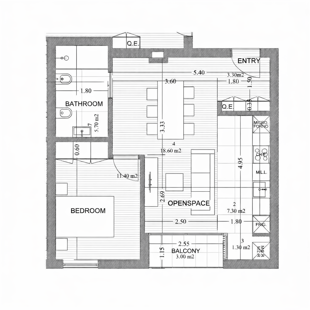
基本的に私はここで助けを求めています オープンスペースの家具の位置、 それは元の観葉植物であり、そこに存在するディナーテーブルではありません…
しかし、私の主な質問は、 ソファの位置をディナーテーブルの位置に変更したほうがいいでしょうか? つまり、壁にテレビがあり、夕食のテーブルがある領域には壁に面してソファが置かれています。そしてディナーテーブル(IKEAのノルデンになります)を今ソファが置かれている場所に移動しますか?
そうすることで毎日の動線が促進されると思います。ソファエリアにディナーテーブルがあると、調理スペースからテーブルに直接移動でき、後の掃除も簡単で、窓/バルコニーの景色も見えます。
テレビやソファのくつろげる空間がさらに広がります。 "保護区"ofcは部屋に近いので、人がアパートに入るとソファ部分に面することになります…