
こんにちは、みんな
アドバイスを求めています。
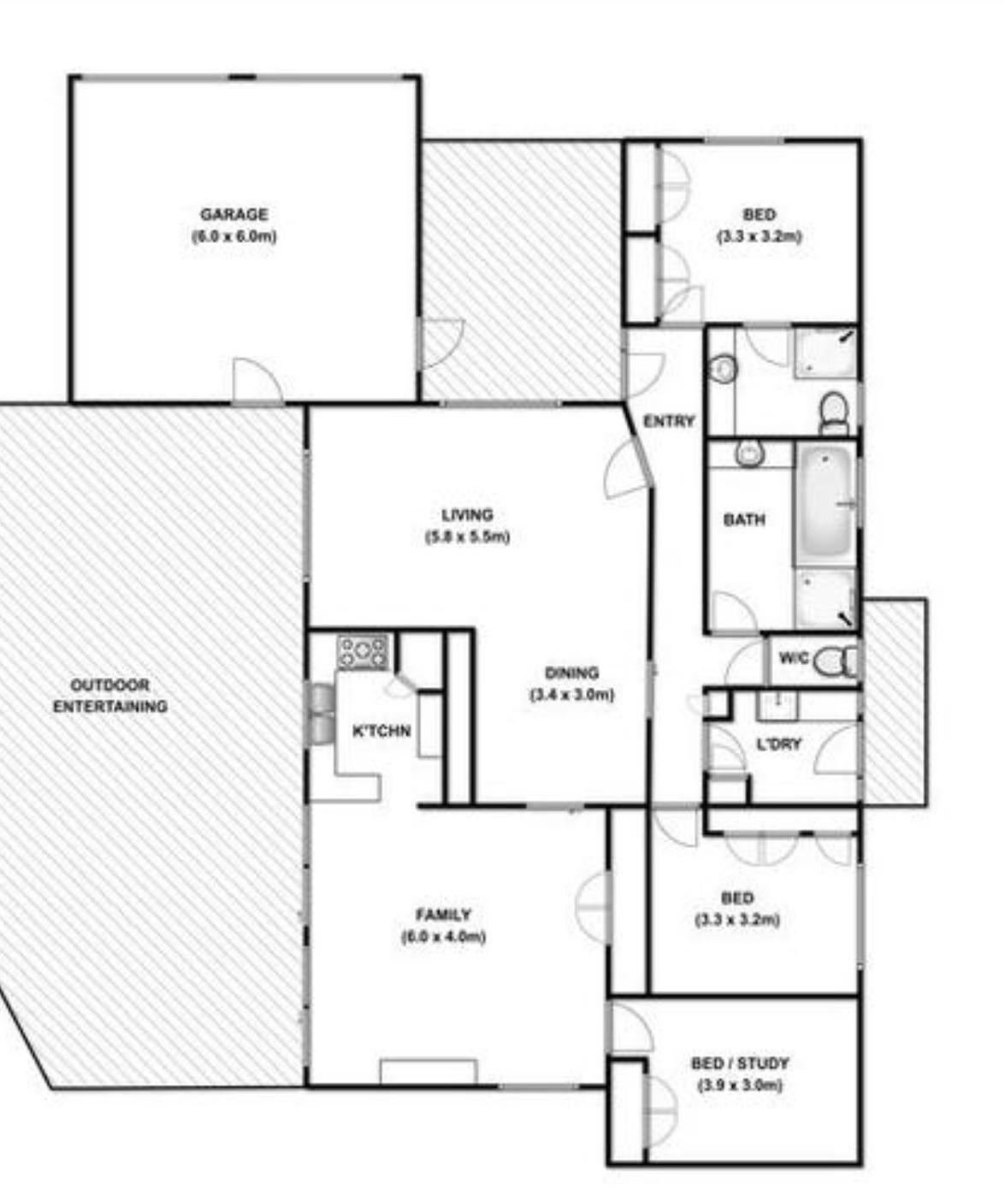
我が家には3ベッドルームの家があり、増築したいと思っています。
私は2018年に妻と一緒にマイホームを購入しました。妻は3人の子供が欲しいと思っていますが、私はノーと言い続けています。必ずしも望んでいないからではなく、子供たちはそれぞれ家の中に自分のスペースを持つべきだと強く信じているため、私は彼女に何でも与えるつもりですが、それについては妥協できません。
博士号取得を希望しているのですが、現在はすべての勉強をベッドで行っているため、家に寝室を 1 つと、できれば (小さい) 勉強/学習エリアを 1 つ追加したいと考えています。
ぜひそれを実現したいと思っていますが、大金を費やすことなく(ASD 20万以内かもしれません)、その研究は私の夢ですが、それが不可能なら不可能です。
私たちが利用できるオプションは、後ろのベッド/書斎からファミリールームの全長に沿って最大4メートルの範囲に出ることです(私の希望ですが、妻はそれほど庭を失いたくないのです。)
正面の寝室とガレージの間のコの字型のスペースに、廊下のある別の小さな部屋を作ります。
ガレージの後ろ、リビングルームの隣に 5 × 3.4 メートルの部屋を建てることもできます。
もう 1 つのオプションは、明らかに最も高価な上に上がり、現在の U 字型のスペースを吹き抜けエリアとして使用することです。
入り口とバスルーム/ランドリーの間の壁全体を簡単に取り外すことができるため、提案や流れの改善さえあれば嬉しいです。
敬具
:) ありがとう