

私たちは現在、設計施工会社とキッチンのフルリフォームの設計段階にいますが、全長パントリーキャビネットの最適な位置という特定の決定に行き詰まっています。
仕様:
- タイプ: 引き出し式の引き出しを備えたキャビネットパントリー (ウォークインではありません)。
- スペース: 玄関とキッチンの間の壁を開けて、元の出入り口を閉めて新たな入り口を作ります。
- 食事の習慣: ダイニングルームは月に1回程度、フォーマルなパーティーに使用されます。毎日の使用のために設置面積を小さく抑えるために、拡張可能なテーブルを使用する予定です。
ジレンマ: パントリーの場所を 2 か所にするか議論しています。
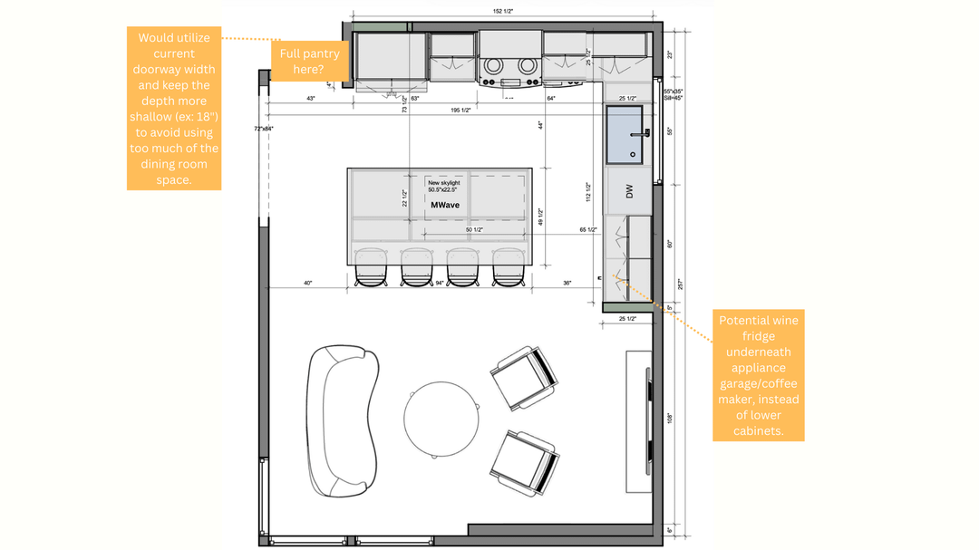
オプション 1: 元の出入り口 (画像 1 を参照)
- 長所: 古いエントランスのデッドスペースを活用し、パントリーをキッチン/ダイニングの流れの中心に保ちます。
- 短所: 18インチの奥行きはダイニングルームにわずかに突き出ており、リビングルームからの対称的な視線を壊し、技術的にダイニングエリアを縮小します。
オプション 2: ファミリールームの壁
- 長所: 古い出入り口をフラッシュウォール(おそらくフローティングシェルフ付き)で閉じ、ダイニングルームの対称性と面積全体を維持します。
- 短所: パントリーはワイン用冷蔵庫や家電製品のガレージの右側に移動し、ファミリールームのスペースを侵食し、統合性が低下する可能性があります。
コンテキストのために 2 つの画像を添付しました。
- モックアップ: 古い戸口にパントリーを備えた現在のドラフト。
- フロアプラン: 流れを俯瞰できるフルハウスレイアウト。
質問: 合理化されたキッチンのレイアウトよりも、対称性が失われ、ダイニングスペースが数インチ広くなることの方が重要でしょうか?通路やダイニングエリアに突き出た奥行きの浅いパントリーに対処したことがある場合、それはつまずきの危険やスペース計画の悪夢でしたか、それとも問題ではありませんでしたか?
レイアウトや不足している可能性のある代替配置についてのご意見をお待ちしております。