


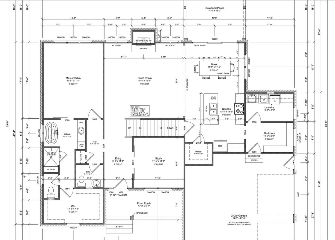
現在、住宅計画のデザインを最終決定しているところです。私たちは、主に将来のリビングルームに関して、いくつかのことで折り合いをつけるのに苦労しています。
- テレビの周りに将来家具を配置するか、交通の流れを適切に保ちながらすべてをどこに置くかを考えるのが難しいです。十分なスペースがあると感じます。すべてを構成する方法を確認するだけです。私たちは 4 人家族で、年に数回、時々主催したり、おもてなしをしたりしています。家は畑の中の農場にあり、家の後ろに木のブロックがあり、窓から外を眺めることができるようにしたいと思っています。
- テレビの周りに内蔵するというアイデアが気に入りました。これが罪であることはわかっていますが、私たちはテレビを暖炉の上に置いてみました。私たちは、暖炉の両側の窓を高くして、窓の下に小さなバージョンを設置できるようにすることを検討しました。このアイデアは、敷地や森の奥の景色を妨げると思うので、私たちは最終的にこのアイデアに悩んでいます。
- おまけに、現在もリビングルームと地下室の暖炉の工事中です。理想的にはガスかLPを燃やします。より簡単でクリーンです。私たちは道路からかなり離れたところに住んでいますが、別世界のような緊急事態が発生した場合に地下室で薪を燃やすことができるというアイデアが私の心の一部では気に入っています。私は薪ストーブの周りで育ち、薪を割って育ちました。また、LP の価格がいつか何らかの理由で制御不能になることも心配しており、地下室にオプションがあるのが好きです。とはいえ、両方のオプションと単一の煙突を用意しようとすることで、建設が複雑になっているように感じます。
誰からのフィードバックやアドバイスも受け付けます。他に何か必要な場合はお知らせください。詳細を確認させていただきます。