



こんにちは、みんな。昨年の9月、ついにアパートの内定が出ました。私は学生で、2021年から基本的に内定待ちです。少し意気込みすぎて、渡された間取りを基に部屋を設計しました。最終的に、私が思いついたものに満足しました(3番目の画像)。もちろん、これは決して決まったデザインではなく、むしろ私が望んでいたものに近似したものでした。覚えておいてください、私は学生の給料で働いているので、貯金した分以外は基本的に何もありません。
問題は、今日ようやくアパートを訪問することができたのですが、間取り図にいくつかの重要な詳細が間違っていたことが判明したことです。
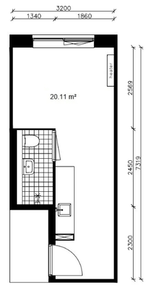
– まず、間取り図では当初窓は北側の壁にあると書かれていましたが、実際には東側の壁にあり、非常に不便な場所で壁の表面積の大部分を占めています。これ自体は最悪のことではありませんが、そこに置く予定だった家具のほとんどが壁に接続されずに自立し、自然光が遮られることを意味します。
– 第二に、間取り図ではヒーターを 1 つではなく 2 つ (1 番目と 2 番目の画像の赤いボックス) 設置するという事実が完全に省略されており、元の間取り図のように小さくもありません。これは祝福のように聞こえますが、そのうちの 1 つは東の壁の非常に不便な場所にあり、テーブル、椅子、棚などの家具をいくつか配置する予定でした。私にとって最も便利なスペースである東の壁が、窓、ヒーター、バスルームのドアのせいで、そのほとんどに物を置くことができなくなってしまい、どういうわけか最大の障害になっているように感じます。 (また、完全にやりすぎです。そのアパートはすでに暑すぎます。)
それで、今は最低限の欲しいものを満たしながら、自分好みのデザインを作ろうと奔走しているのですが、何も分からないので、基本的に最後の手段としてここに来ていますが、よかったら挑戦として見てください。
ここにいくつかの情報があります:
– 窓の深さはおそらく 45 cm で、窓の前に高さ約 10 cm の段差があります。
– 黄色いボックスは壁です
– 緑色の箱はカウンタートップで、高さ約 100 cm で移動できません。
– 赤い箱はヒーターです。高さは約 80 cm、おそらくもう少し高いです。
– 1 番目と 2 番目の画像は部屋の概略図です。残念ながら、アパート全体を測る時間がありませんでした。すべてを完璧に合わせることに集中しすぎるのは賢明ではないかもしれません
要件:
– 2人用のベッド。私はほとんどの場合一人で暮らしていますが、時々一緒に寝るパートナーがいます。1人用のベッドで一緒に寝るのはロマンチックですが、特に夏の間はかなり暑いので、ある程度のスペースがあったほうが良いと思います。
– 十分な表面積を持つ机。仕事と大学の両方で、適切な机のセットアップが必要です。正直に言うと、これが私が最も頑固であることです。ベッドは小さくても問題ありませんが、優れたデスクがあれば生活スペースは大きく左右されます。
– できれば 2 人が座れる十分なスペースのあるテーブル。
– 私はすでにその冷蔵庫を所有しています。小さいのは買えません。
– 衣類保管庫のようなもの、何でもいいです。
欲しいけど必須ではないもの:
– より多くのカウンタートップスペース、
– ある種の本棚。
もちろん、このアパートにぴったりの家具を選ぶように誰かに頼むつもりはありませんが、このスペースのインテリアをどのようにデザインするかについては正直に困惑しています。大まかなレイアウトやアイデアを探しているだけです。色、スタイル、床材、壁紙、ペイントなどの詳細を心配する必要はありません。すべてが見栄え良くスペースに収まる方法についての提案が欲しいだけです