




こんにちは!自分の部屋に読書コーナーまたは読書エリアを追加したいと考えています。
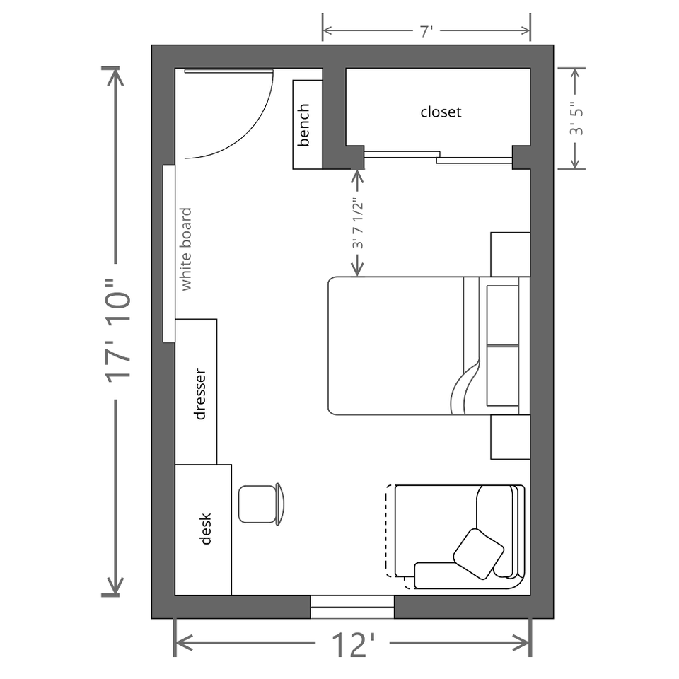
レイアウトをいじってみましたが、スペースプランニングを最適に活用できるものが見つかりません。読書エリアと私の机を窓の近くに置きたいと思っています。追加しようとしています このラウンジチェア 読書エリアにしたいのですが、椅子は変更できるので、足を乗せたいだけです。
潜在的なレイアウトは良さそうですが、6 フィートのホワイト ボードから遠くなってしまい、窓を塞いでしまうため下の壁に移動することができません。
何かアイデアがあれば:
- 読み取り領域の追加、
- 机をホワイトボードの近くに置いていますか?
ただし、ベッドはおそらく右側の壁に設置する必要があります。アイデアをありがとう!