
やあ、みんな!
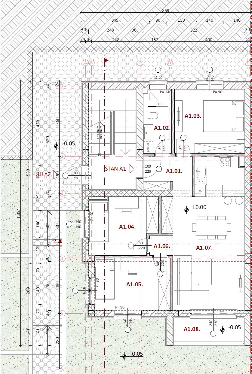
SO と私は、現在建設中の建物のアパートを購入しようとしています。レイアウトと全体的なデザインについてご意見をいただきたいと思っています。ここは 1 階で、総面積は約 73 平方メートルで、すべての内壁はまだ変更できるため、この段階では十分な柔軟性があります。
主な目標は、レイアウトが機能性、動線、日常生活の観点から適切に機能することを確認することです。バスルームとキッチンのサイズは、窮屈さを感じさせずに実用的で快適であることを確認したいので、私は主に心配しています。また、自宅で仕事をしているので専用のオフィススペースが必要で、別の部屋は専用のトレーニング/趣味エリアになるので、3(ベッド)ルームのアパートメントとして維持したいと考えています。
機能性に関するアドバイスやアイデアは大歓迎ですが、美観に関するアイデアも大歓迎です。プロポーション、照明、家具の配置、空間をよりバランスが取れて住みやすいものにするためのデザインタッチなど
何がうまくいき、何がうまくいかないと思いますか。これがあなたのスペースだったら、何を変えると思いますか?
現在の平面図を下に添付します。単位はセンチです。
貴重なご意見やご提案をいただきありがとうございました。 ❤