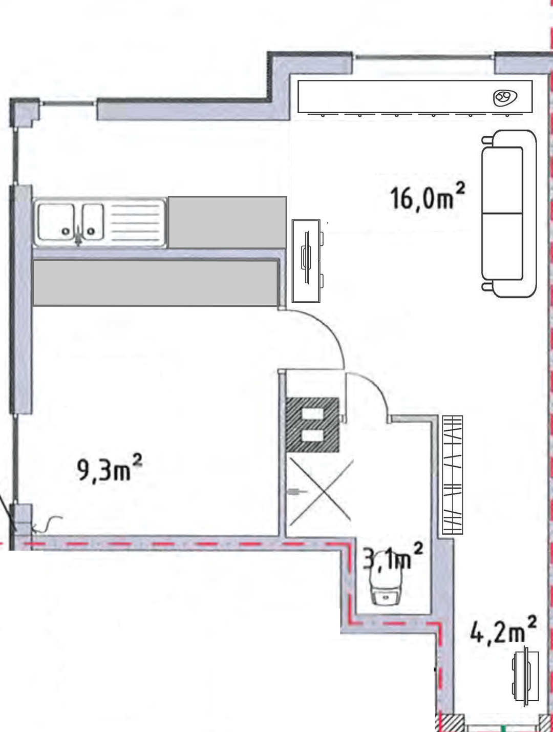
これは今のところアパートの計画です。私は将来改修を行うことを計画しており、アパート全体のレイアウトを変更する可能性があります(負荷ベアリングの壁はありません)が、当面もいいです。

最後の所有者は、このようにリビングルームのレイアウト(16,0m2はリビングルーム +左側のオープンキッチンの合計です)を持っていました。大きな窓とそのすぐ隣のソファの隣にある低い長いキャビネットでamp屈に感じられます。

アパートにはあまりスペースがありませんが、カウチ、コーヒーテーブル、ゲストが終わったときのためにコーヒーテーブルの隣に座る1つまたは2つのアームチェア、または他の手段を持ちたいと思います。また、必要に応じてフィルムを見るために取り外し可能なプロジェクタースクリーンをどこかに置きたいと思います。また、画面が2つのスピーカーである必要があります。

これを実現するのはかなり難しいスペースであることを知っています。この計画では、ソファを他のどこにも置くことができないので、画面はキッチンの入り口の上の天井から来なければなりません。そして、スピーカーは、キッチンの入り口の両側にあり、その場合は窓の隣にあるサウンドシステムを備えたキャビネットが必要です。

誰かが何かを描きたいなら、私のアイデアと最後は空の計画です。

そしてもう1つは、私がどこかにも仕事のテーブルを持ちたいということですが、部屋がある唯一の場所は、すでに少しamp屈な寝室です。